About us
projects
Courses
Contact
About us
projects
Courses
Contact
upper west side - Penthouse
“My garden is my most beautiful masterpiece”
― Claude Monet
IN PARTNERSHIP WITH VIAGARDENS.
Existing Conditions:
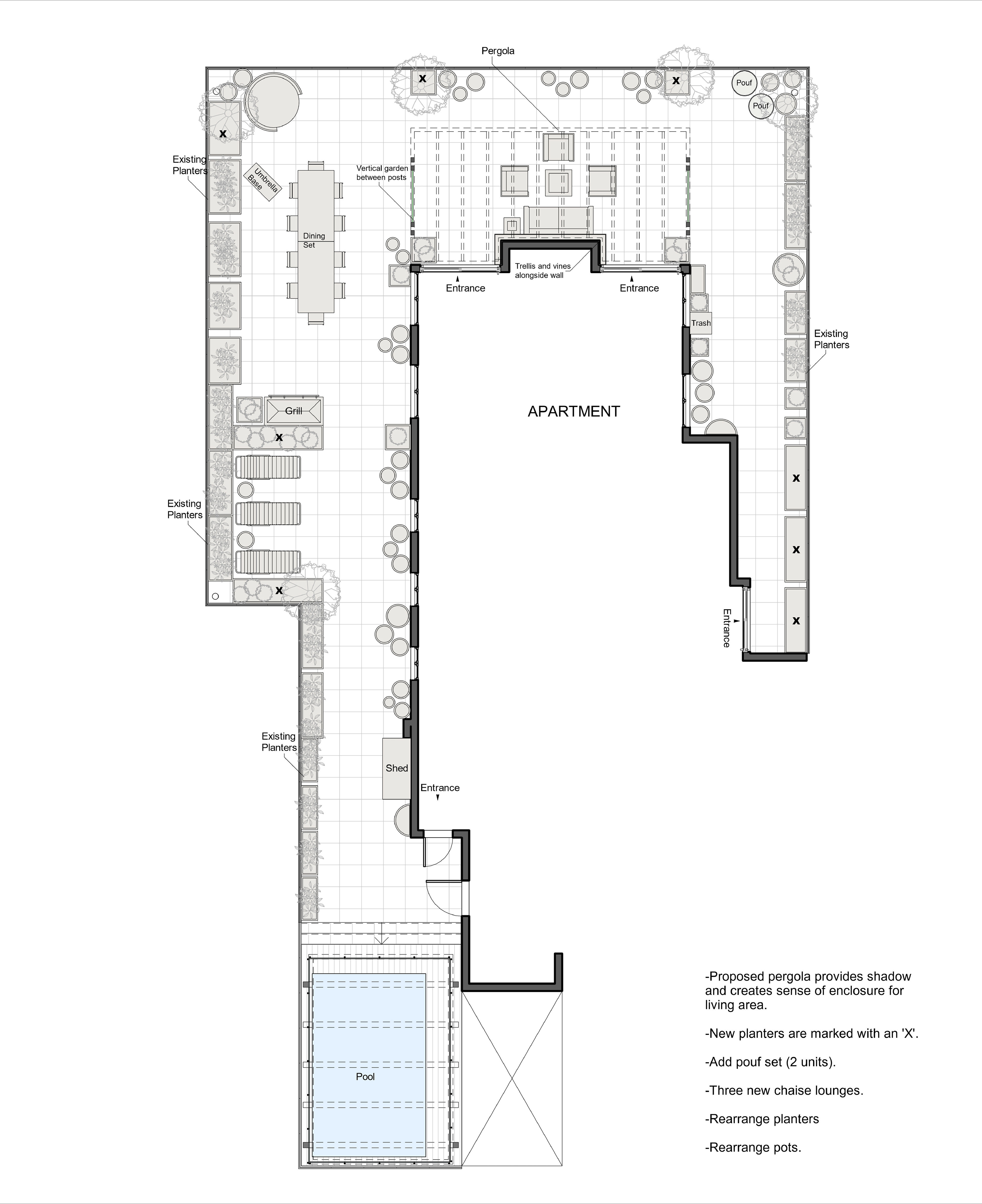
design proposal - concept 'a' :
You may also like
CHELSEA - RESIDENCE
2022
Refugio en el Lago
2022
UPPER EAST SIDE - TOWNHOUSE
2021
MONTEFLORA APARTMENTS | VIRTUAL TOUR
2023
UPPER EAST SIDE - BATHROOM
2022
barista coffee SHOP
2023
Sunleaf Retreat - UES
2024
CASA SOVERANA
2024
Hilltop Retreat
2024
Brooklyn - TOWNHOUSE
2022
↑
Back to Top