About us
projects
Contact
About us
projects
Contact
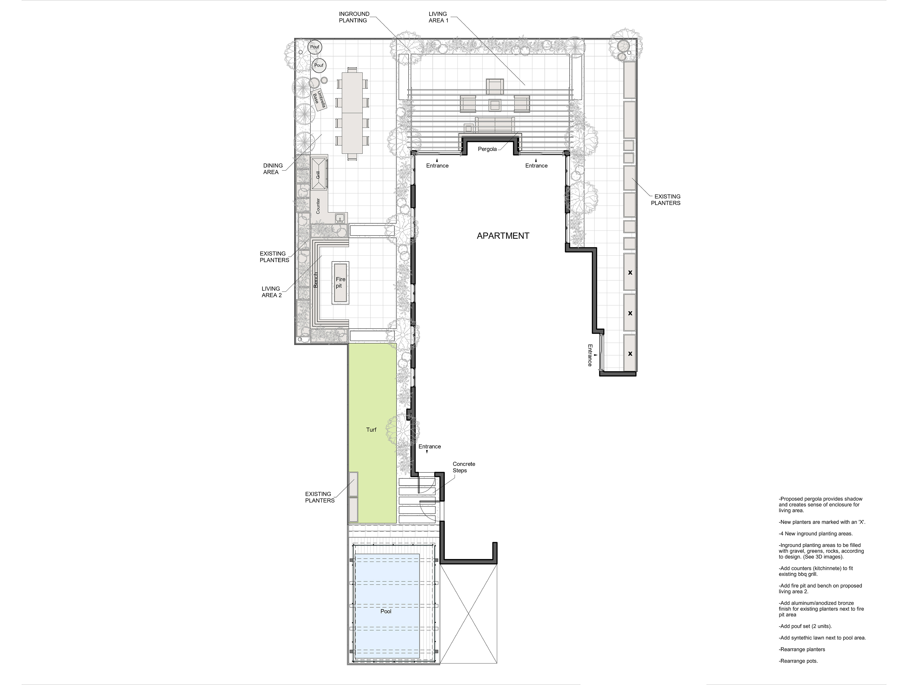
upper west side - Penthouse - 'B'
"Any landscape is a condition of the spirit". - henri frederic amiel
In partnership with Via gardens & LS irrigation.
EXISTING CONDITIONS:
design proposal:
You may also like
Brooklyn - TOWNHOUSE
2022
CASA SOVERANA
2024
WEST VILLAGE - 8th Ave
2022
FORTUNATA HOUSE
2022
MONTEFLORA APARTMENTS | VIRTUAL TOUR
2023
UPPER WEST SIDE - LANDSCAPE DESIGN
2022
Villa Vista verde
2022
UPPER EAST SIDE - TOWNHOUSE
2021
UPPER EAST SIDE - PENTHOUSE
2022
MIDTOWN - OFFICES
2022
↑
Back to Top